一個為藝術與內容誕生的共享空間
沃茲新創空間忠明館座落於台中市南區,臨近美術館、審計新村、半平厝公園,本身就位於台中藝文生活圈的心臟地帶。空間面積約 35 坪,可依不同形式活動彈性容納 30 至 100 人,無論是小型觀演、靜態展覽,或是深入對談,都能自在展開
這裡不只是空間,更是一處創作能量與觀眾共鳴交會的場域
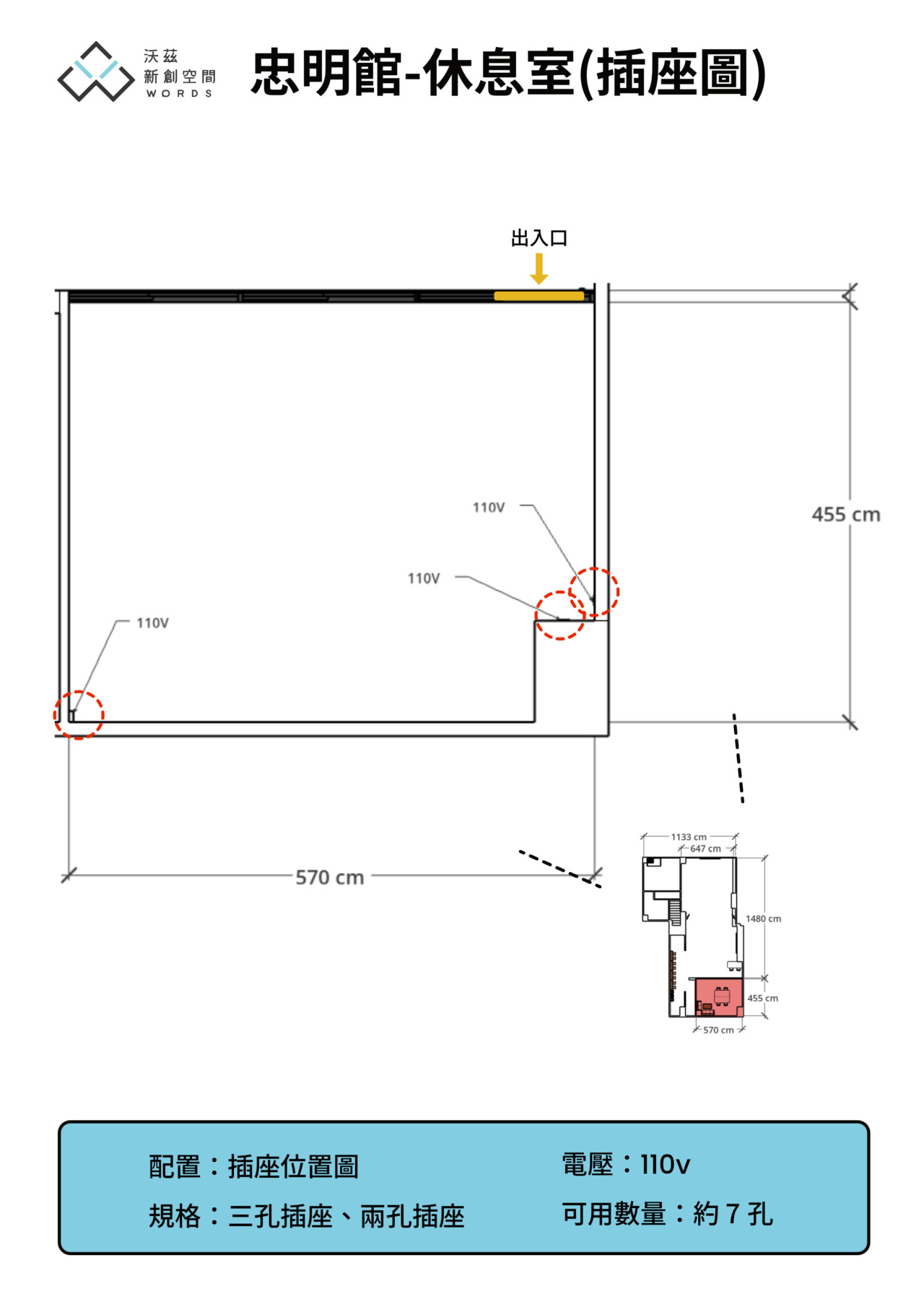
提供音響系統、穩定收音、場域隔音佳
提供投影設備、白板與座椅靈活配置
空間留白足夠,牆面可佈置展示內容
空間具備藝術氛圍,能提升活動質感
地板無固定設施,可開放空間自由動線運用
📌 近台中美術館、審計新村|南屯路&忠明南路口/半平厝公園對面
步行3分鐘可到公車站(崇倫國中)
📌 空間面積約35坪|視不同活動約容納30-100人次
📌 平/假日皆依:「實際使用時數」預訂(非早/中/晚時段)
👉 設備齊全交通方便
👉 環境舒適 / 隱密性高
一站式場地預約平台,快速搞定每個重要時刻!
一站式場地预約平台,量身打造專屬活動空間!
台中市南區忠明南路 478 號 B1
#近台中美術館,審計新村
南屯路&忠明南路口/半平厝公園對面
步行3分鐘可抵達公車站(崇倫國中)
步行1分鐘可抵達 半平厝公園停車場
台中市南區建國南路一段&建國南路一段236巷
步行4分鐘可抵達 CITY PARKING ( 國泰忠明 )
台中市西區忠明南路497號